株洲市镜湖蓝岸
-
楼盘均价 :
房贷计算器 5300元/㎡
报价时间:2026-04-04,价格有效期:28天 该价格为参考价格,实际价格以开发商为准!
- 开盘时间 :
- 建筑面积 :
- 占地面积 :
- 楼盘地址 :
订阅消息将通过短信及推送等形式通知您
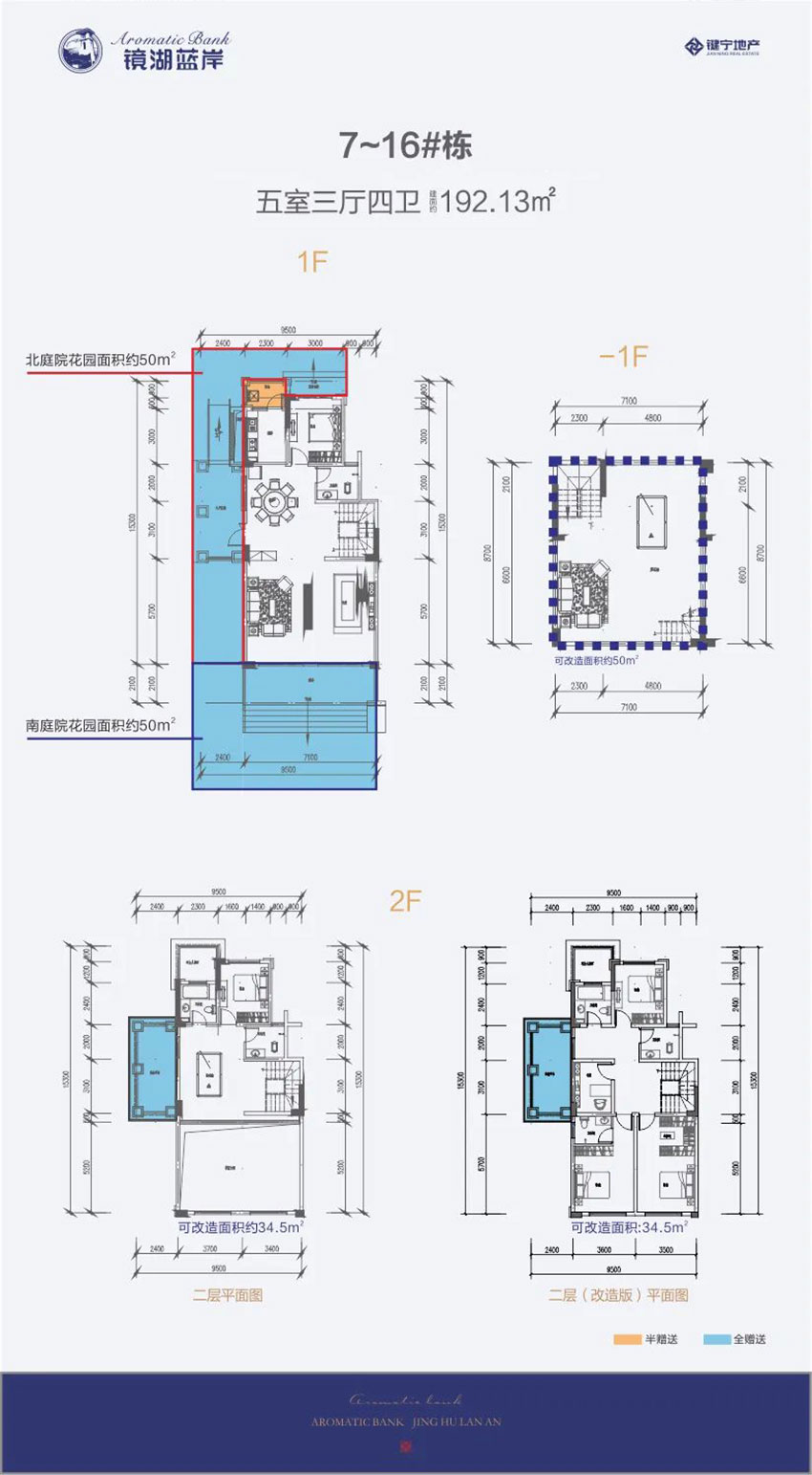
主力户型
查看全部-
暂无数据
区域配套
楼盘介绍
株洲镜湖蓝岸位于云龙示范区玉龙路189号,总户数:1108户,容积率2.0,绿化率:37.27%,用地面积103亩,总建筑面近13万㎡,规划有阔景高层、品质洋房、商业街等,整体采用法式高品质建筑风格,项目分为二期建设,一期为阔景高层6栋及7-16栋法式低密度洋房,二期为1-5栋高品质阔景高层。






