株洲市雪峰山壹号
-
楼盘均价 :
房贷计算器 5000元/㎡
报价时间:2026-04-03,价格有效期:28天 该价格为参考价格,实际价格以开发商为准!
- 开盘时间 :
- 建筑面积 :
- 占地面积 :
- 楼盘地址 :
订阅消息将通过短信及推送等形式通知您
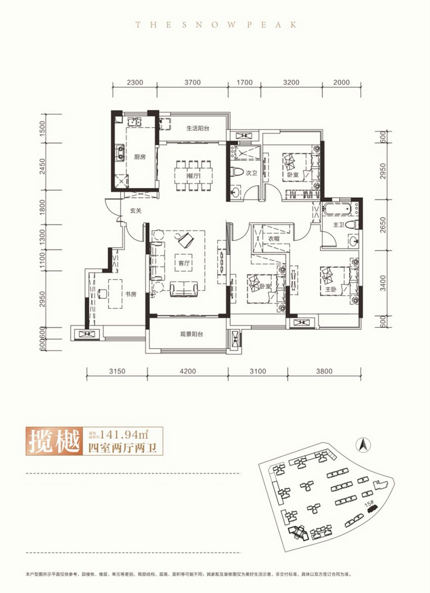
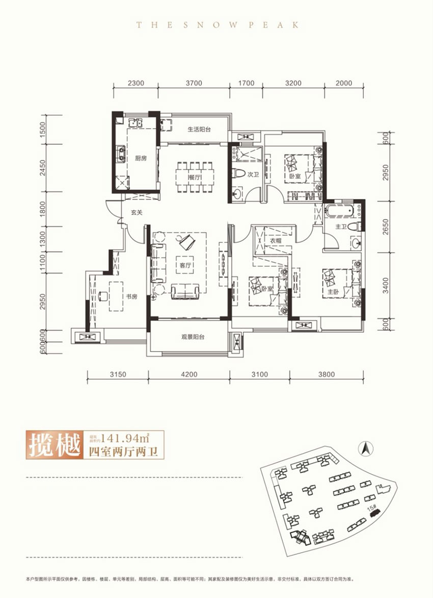
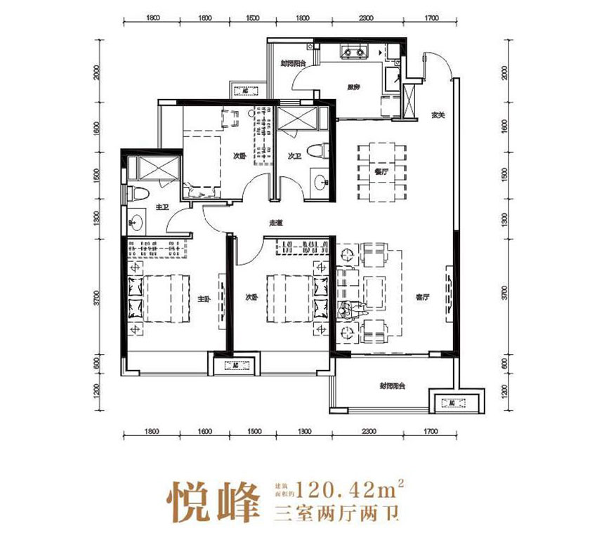
主力户型
查看全部-
暂无数据
区域配套
楼盘介绍
株洲雪峰山壹号位于石峰田心立交桥时代大道与迎宾大道交汇处北200米,占地面积:68323㎡,建筑面积:17.01万方,项目自建国际双语幼儿园,周边规划有酒店及写字楼、邻里商业中心、品牌小学,以健康智慧理念打造低密舒适社区。








