雁峰区博达晴天悦
-
楼盘均价 :
房贷计算器 4800元/㎡
报价时间:2026-05-18,价格有效期:28天 该价格为参考价格,实际价格以开发商为准!
- 开盘时间 :
- 建筑面积 :
- 占地面积 :
- 楼盘地址 :
订阅消息将通过短信及推送等形式通知您
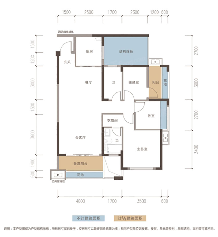
主力户型
查看全部区域配套
楼盘介绍
衡阳博达晴天悦位于雁峰区蒸湘南路111号(衡阳碧桂园正对面),总建筑面积约20万方,容积率3.0,绿化率37%。项目分两期开发:一期由4栋板式结构的6+1层电梯花园洋房、1栋11层揽景小高层及1栋27层中心景观高层及近万平米临街商业组成。二期由三栋两梯四户高层和一栋两梯两户板房小高层组成。










