珠晖区梧桐庄园
-
楼盘均价 :
房贷计算器 6000元/㎡
报价时间:2026-05-18,价格有效期:28天 该价格为参考价格,实际价格以开发商为准!
- 开盘时间 :
- 建筑面积 :
- 占地面积 :
- 楼盘地址 :
订阅消息将通过短信及推送等形式通知您
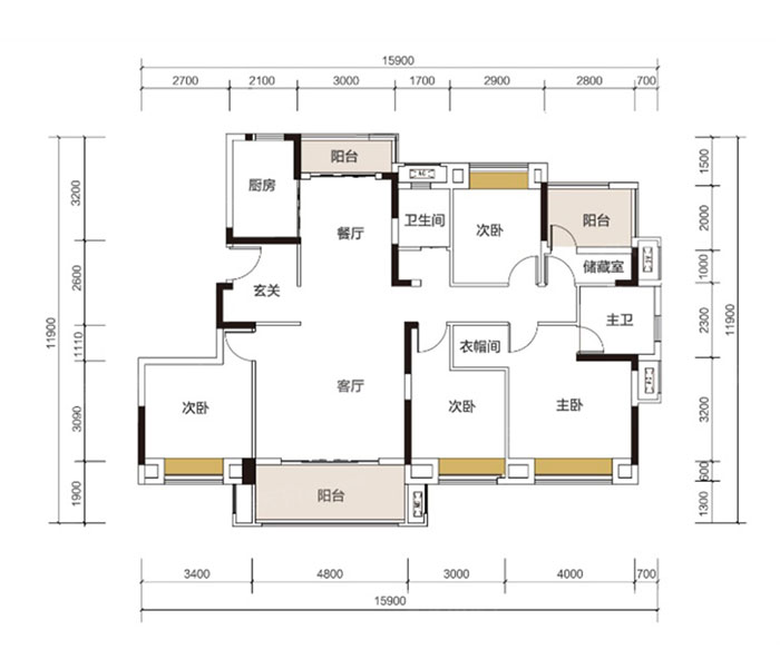
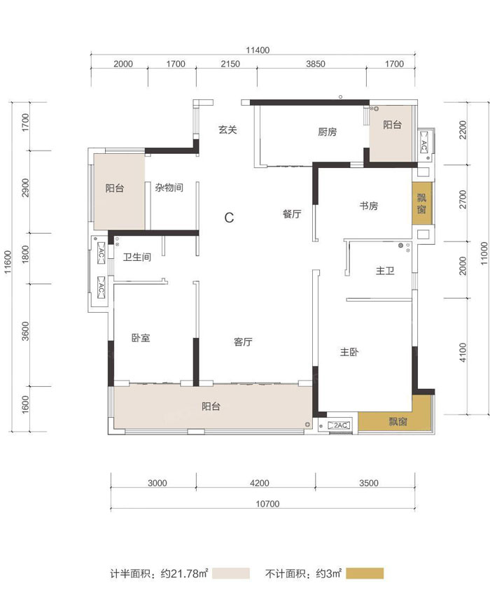
主力户型
查看全部区域配套
楼盘介绍
衡阳美的梧桐庄园位于珠晖区衡州大道东48号(师院旁、酃湖公园畔),项目总占地约450亩,总建筑面积约75万方,小区总规划4758户,容积率仅2.3。项目建筑类型涵盖电梯花园洋房、小高层、品质高层、风情街区等多种物业形态;由开发商湖南中库投资有限公司、美的置业倾力打造。









