石鼓区万阳和府
-
楼盘均价 :
房贷计算器 5100元/㎡
报价时间:2026-05-18,价格有效期:28天 该价格为参考价格,实际价格以开发商为准!
- 开盘时间 :
- 建筑面积 :
- 占地面积 :
- 楼盘地址 :
订阅消息将通过短信及推送等形式通知您
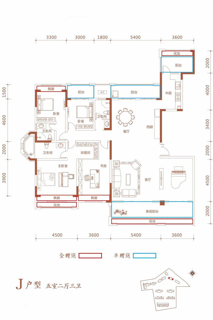
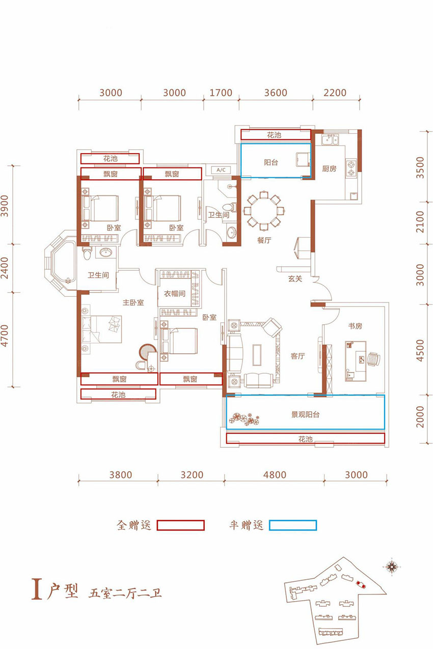
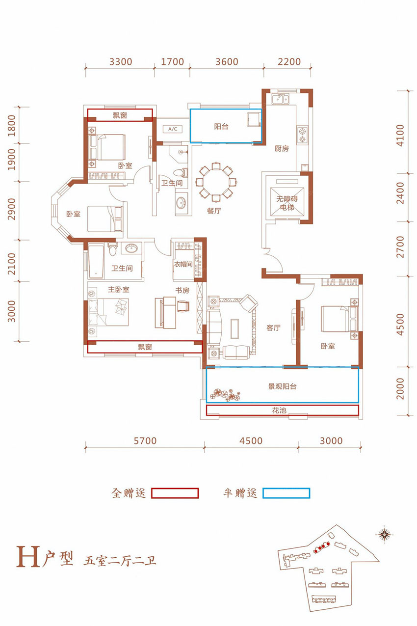
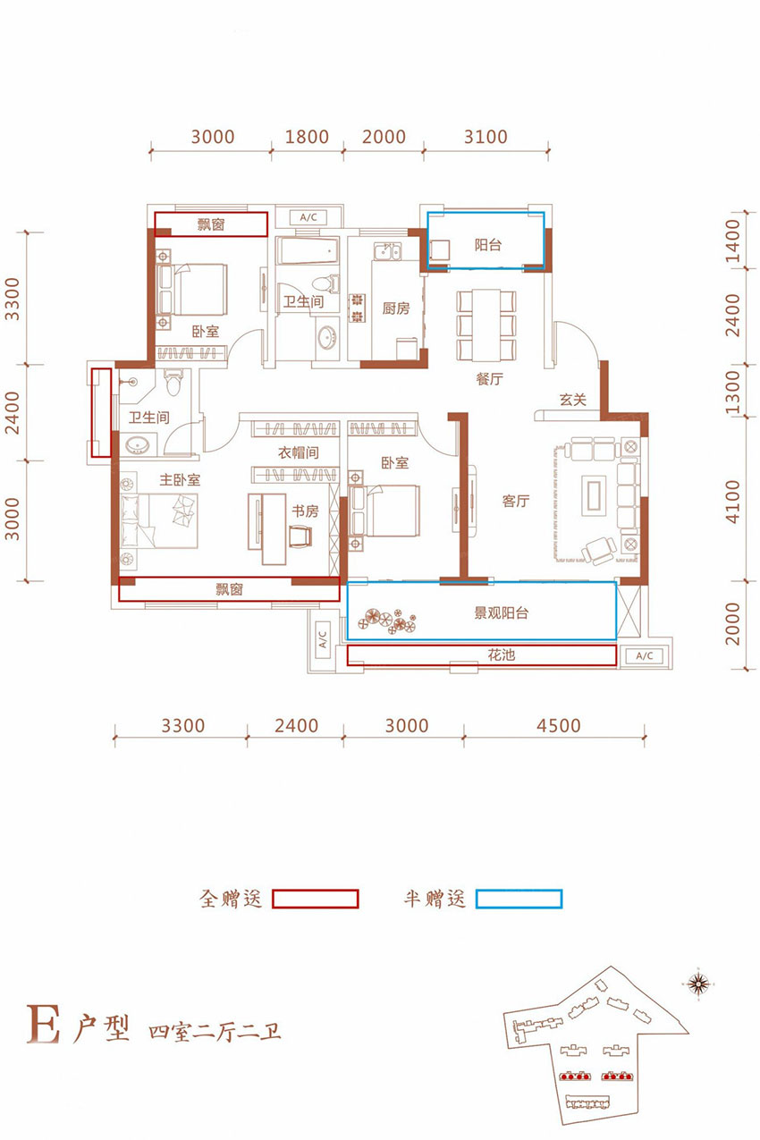
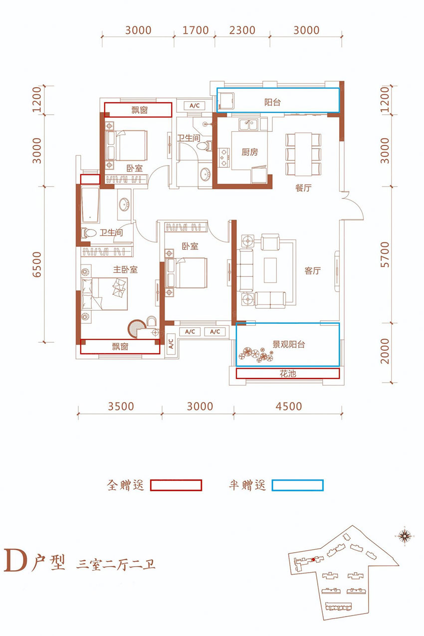
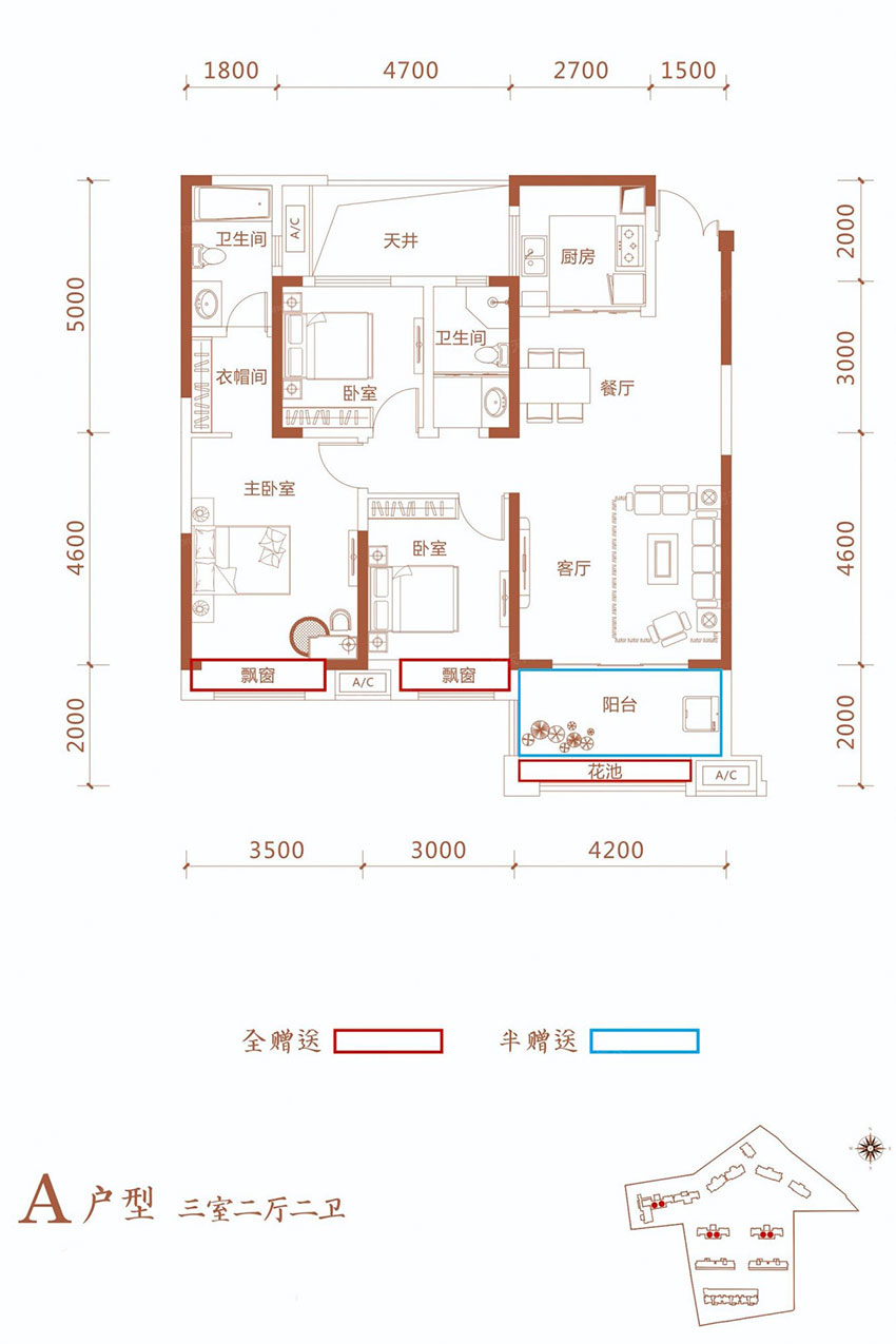
主力户型
查看全部区域配套
楼盘介绍
衡阳万阳和府位于石鼓区蒸湘北路269号雁栖湖畔(华源市场正对面),项目总占地面积42331.81㎡,实际的建筑面积157045.46㎡,绿化率36.6%,小区规划楼栋总数11栋,规划总户数832户,停车位:912个(地面106个,地下806个(其中子母停车位84个))。














