蒸湘区金科檀樾
-
楼盘均价 :
房贷计算器 5800元/㎡
报价时间:2026-05-18,价格有效期:28天 该价格为参考价格,实际价格以开发商为准!
- 开盘时间 :
- 建筑面积 :
- 占地面积 :
- 楼盘地址 :
订阅消息将通过短信及推送等形式通知您
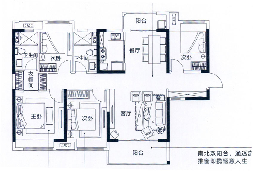
主力户型
查看全部区域配套
楼盘介绍
衡阳金科檀樾位于蒸湘区杨柳路与彩霞街交汇处,占地面积约126亩,建筑面积约42万方,规划有12栋高层、1栋酒店公寓,自建有约3100㎡公立幼儿园以及约6万方商业街区,地块方正,周边配套完善,开发商:衡阳市鼎衡房地产开发有限公司










