桂阳县德泰宝领嘉园
-
楼盘均价 :
房贷计算器 5100元/㎡
报价时间:2026-05-18,价格有效期:28天 该价格为参考价格,实际价格以开发商为准!
- 开盘时间 :
- 建筑面积 :
- 占地面积 :
- 楼盘地址 :
订阅消息将通过短信及推送等形式通知您
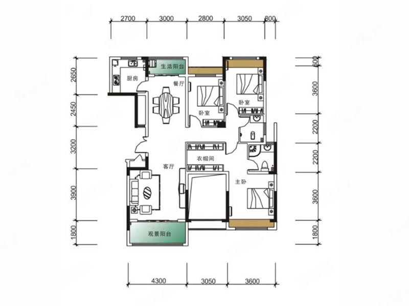
主力户型
查看全部区域配套
楼盘介绍
桂阳德泰宝领嘉园由湖南德泰建设集团投资开发,是德泰建设集团的又一精品项目。立志打造桂阳城南片区品质住宅楼盘。项目位于蒙泉路南侧,是真正的老城区新楼盘,地处繁华地段,交通非常的便利,居家生活配套完善。这里将来会是桂阳理想的居住地。与桂阳中心步行街商圈临近,在门口即可搭乘2、5、6路公交车贯穿全城,去郴州的102城际公交车也从小区门口经过,一市场,城南水果市场,步行街都在附近,居家生活配套完善。项目到人民完小、城南完小、桂阳三中、鹿峰中学,步行都附近,小区后面的宝岭小学9月份已经投入使用(含鹿峰中学8个班级)。











