北湖区帝福韵城市之心
-
楼盘均价 :
房贷计算器 8500元/㎡
报价时间:2026-05-18,价格有效期:28天 该价格为参考价格,实际价格以开发商为准!
- 开盘时间 :
- 建筑面积 :
- 占地面积 :
- 楼盘地址 :
订阅消息将通过短信及推送等形式通知您
主力户型
查看全部区域配套
楼盘介绍
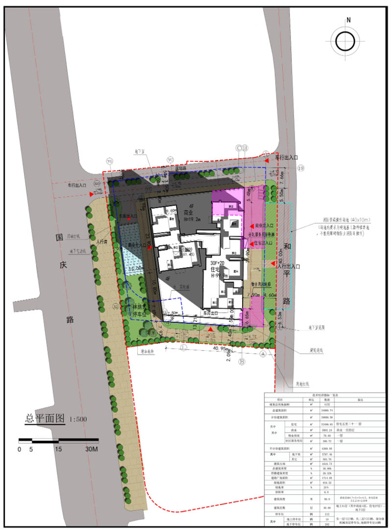
郴州帝福韵城市之心项目位于郴州市主干道国庆南路9号,是郴州繁华的地段之一,项目定位为领业,周边有多家幼儿园和二完小,三完小,九完小,(以教育局划分片区为准),郴州市六中等优质教育配套资源,项目所在地具有综合发展的有利条件和优势,项目的开发将为周边居民生活带来便利,给城市优化添增亮。帝福韵·城市之心致力于打造成集商业休闲于高层住宅为一体的高端商住综合体,全新现代化的独特规划设计,将使它成为国庆南路的标志性建筑。












