珠晖区印湖湾
-
楼盘均价 :
房贷计算器 7000元/㎡
报价时间:2026-05-18,价格有效期:28天 该价格为参考价格,实际价格以开发商为准!
- 开盘时间 :
- 建筑面积 :
- 占地面积 :
- 楼盘地址 :
订阅消息将通过短信及推送等形式通知您
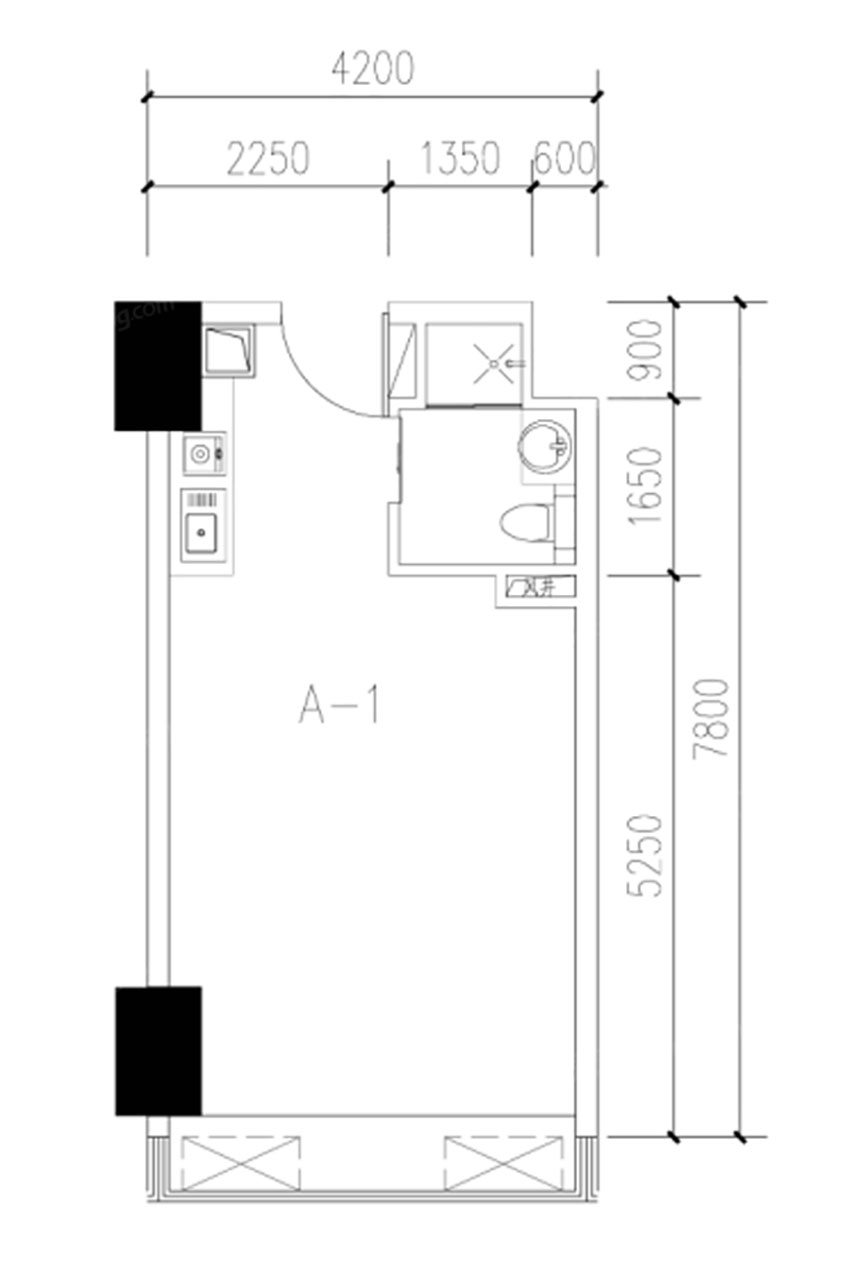
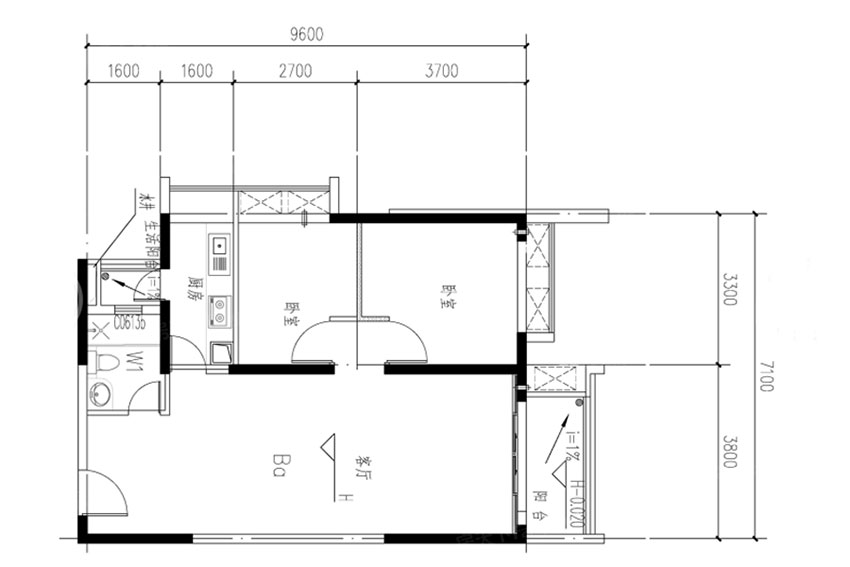
主力户型
查看全部区域配套
楼盘介绍
衡阳印湖湾位于珠晖区衡州大道衡阳师范学院旁,项目占地面积约42亩,规划总用地面积27566.7平方米,总建筑面积约15万平方米,小区规划户数达1217户。由酒店、公寓、住宅、车位组合而成(其中酒店客房299户,公寓式住宅279户,住宅639户,地上地下共有停车位约1012个)。建设开发共10栋,其中9栋住宅、1栋商业性酒店。












