珠晖区衡州教育新城
-
楼盘均价 :
房贷计算器 5400元/㎡
报价时间:2026-05-18,价格有效期:28天 该价格为参考价格,实际价格以开发商为准!
- 开盘时间 :
- 建筑面积 :
- 占地面积 :
- 楼盘地址 :
订阅消息将通过短信及推送等形式通知您
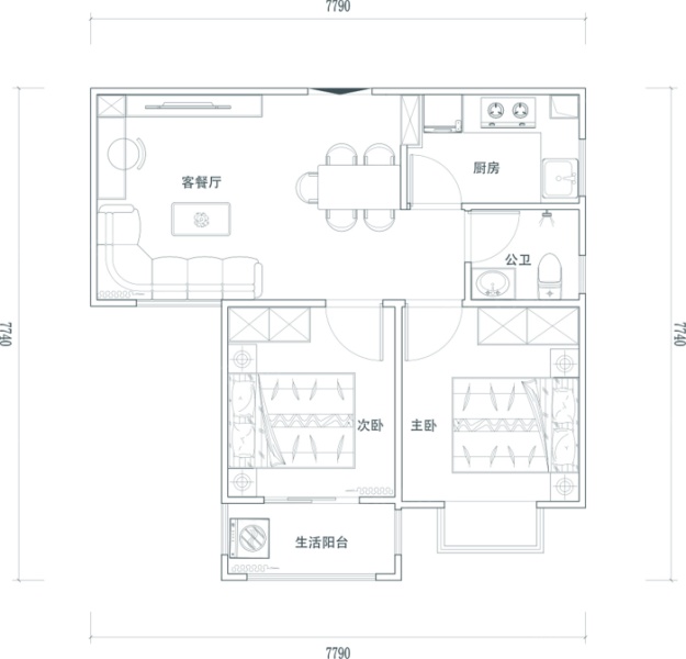
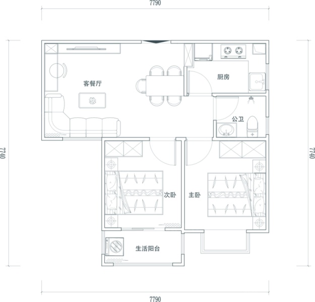
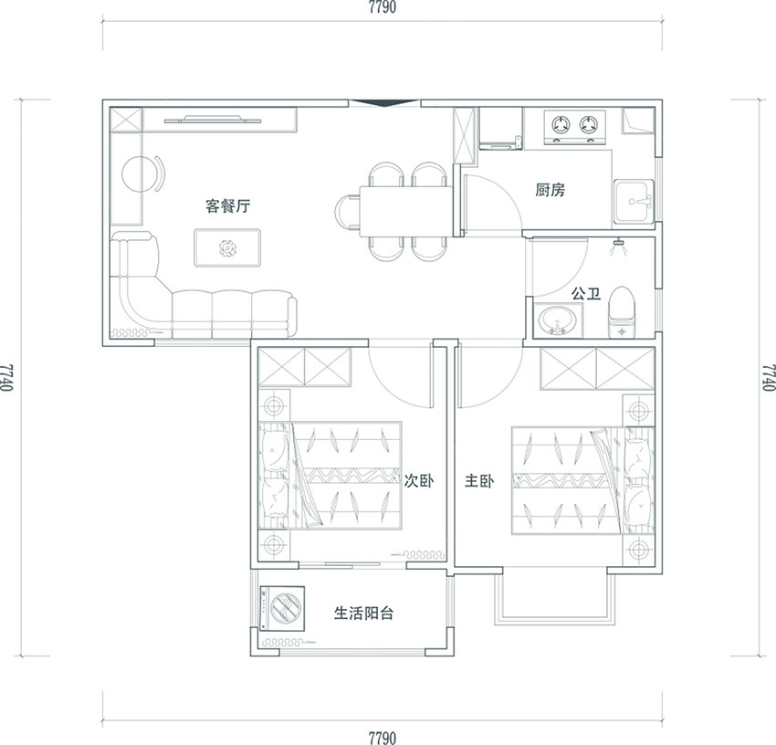
主力户型
查看全部区域配套
楼盘介绍
衡州教育新城位于珠晖区衡州大道东路19号(湖南工学院北门对面),项目总占地约50亩,建筑面积约18万㎡,容积率3.8,绿化率30%,小区楼栋总数7栋,产品涵盖1.6万方教培街区、文创街区七彩城、70年产权青年公寓、以及“第四代住宅”空墅,项目以高铁新城中轴及大学城商圈中芯优势,创新引入一线城市文创集市品牌,将成为高铁新城情怀商业地标。





