珠晖区中建和城壹品
-
楼盘均价 :
房贷计算器 5500元/㎡
报价时间:2026-05-18,价格有效期:28天 该价格为参考价格,实际价格以开发商为准!
- 开盘时间 :
- 建筑面积 :
- 占地面积 :
- 楼盘地址 :
订阅消息将通过短信及推送等形式通知您
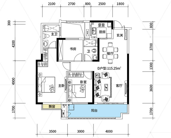
主力户型
查看全部区域配套
楼盘介绍
衡阳中建和城壹品位于衡阳珠晖区体育中心正对面(衡州大道与陵合路交汇处),项目占地面积229311.26㎡,实际的建筑面积538109.11㎡,容积率2.10 ,楼栋总数37栋,规划总户数2511户,产品涵盖高层,小高层,洋房、公寓、商业街区等多种产品,由开发商衡阳领盛房地产有限公司倾力打造。










