蒸湘区珠江愉景豪庭
-
楼盘均价 :
房贷计算器 5200元/㎡
报价时间:2026-05-18,价格有效期:28天 该价格为参考价格,实际价格以开发商为准!
- 开盘时间 :
- 建筑面积 :
- 占地面积 :
- 楼盘地址 :
订阅消息将通过短信及推送等形式通知您
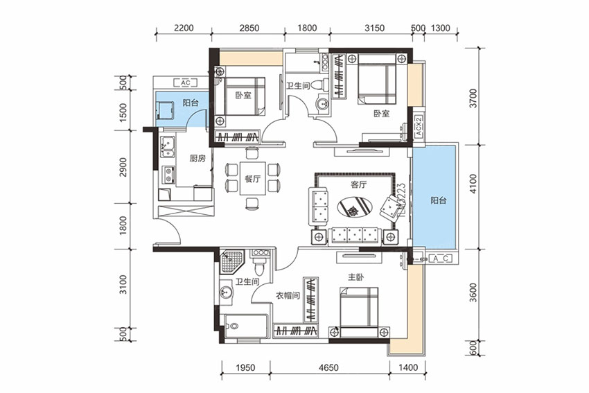
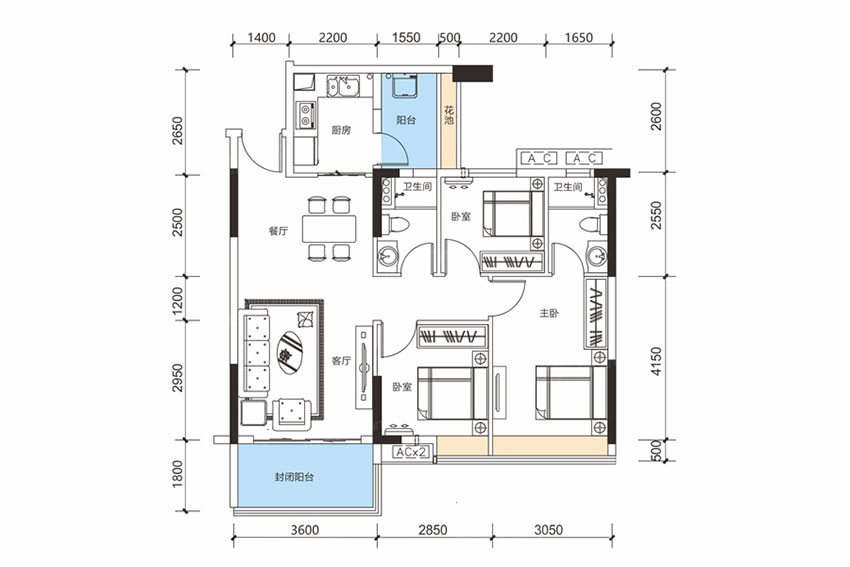
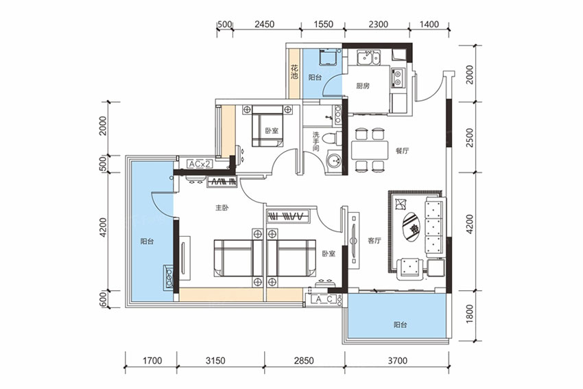
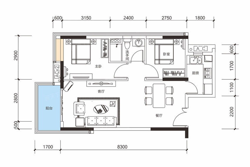
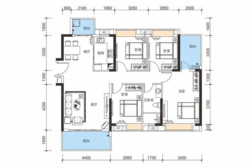
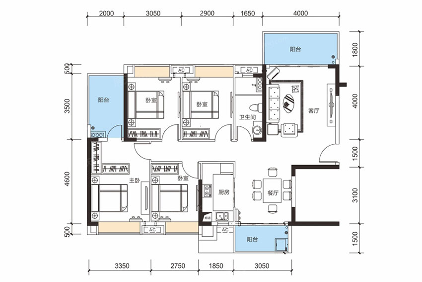
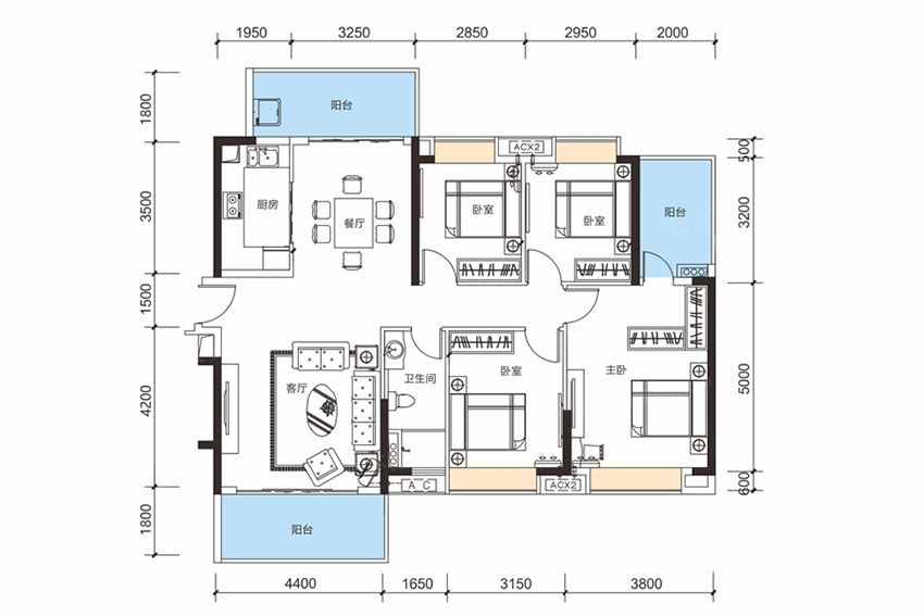
主力户型
查看全部区域配套
楼盘介绍
衡阳珠江愉景豪庭位于蒸湘区长丰大道与衡州大道交汇处(衡州小学东),占地面积:37562.7㎡,建筑面积:135535.65㎡,容积率:3.0,绿化率:35%,楼栋总数:7栋,总户数:782户,物业公司:衡阳市中鸿物业服务有限公司,停车位:885个(地上86个,地下799个),开发商:衡阳和合置业有限公司。














