蒸湘区弘阳昕悦府
-
楼盘均价 :
房贷计算器 5200元/㎡
报价时间:2026-05-18,价格有效期:28天 该价格为参考价格,实际价格以开发商为准!
- 开盘时间 :
- 建筑面积 :
- 占地面积 :
- 楼盘地址 :
订阅消息将通过短信及推送等形式通知您
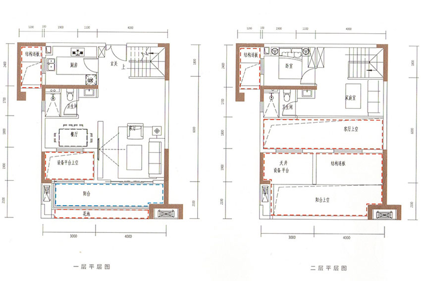
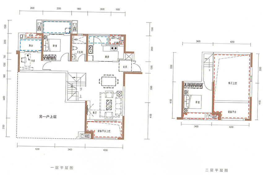
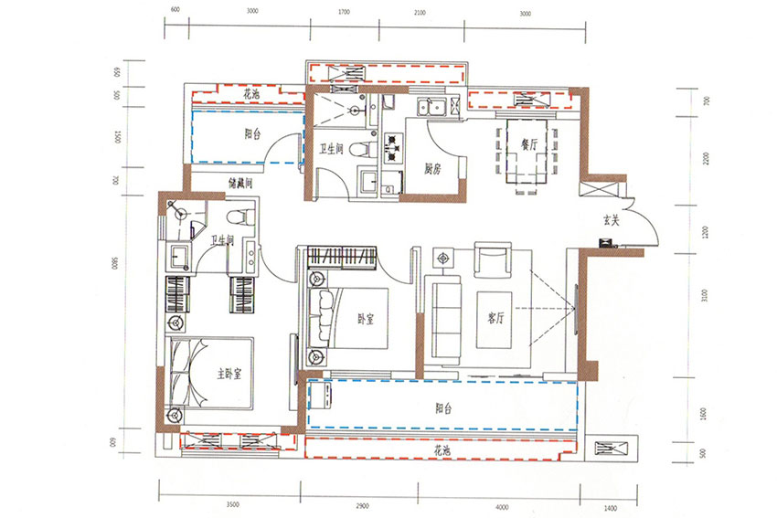
主力户型
查看全部区域配套
楼盘介绍
衡阳弘阳昕悦府位于蒸湘区杨柳路与光辉街交汇处(原黄花集团),项目总占地面积约3.7万㎡,实际的建筑面积约14万㎡,容积率3.0,绿化率38%,小区规划楼栋总数10栋,规划总户数900户,停车位870个(地面61个,地下809个),由开发商衡阳弘涛房地产开发有限公司打造。








