蒸湘区光辉一品
-
楼盘均价 :
房贷计算器 5600元/㎡
报价时间:2026-05-18,价格有效期:28天 该价格为参考价格,实际价格以开发商为准!
- 开盘时间 :
- 建筑面积 :
- 占地面积 :
- 楼盘地址 :
订阅消息将通过短信及推送等形式通知您
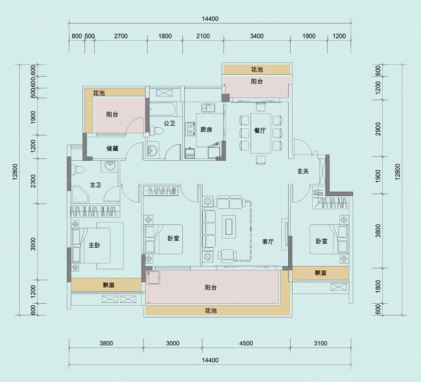
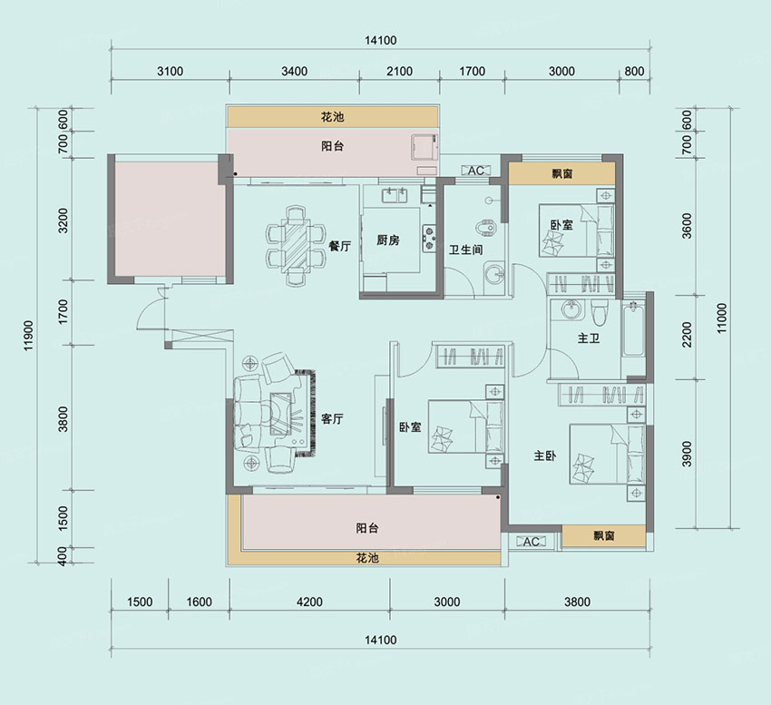
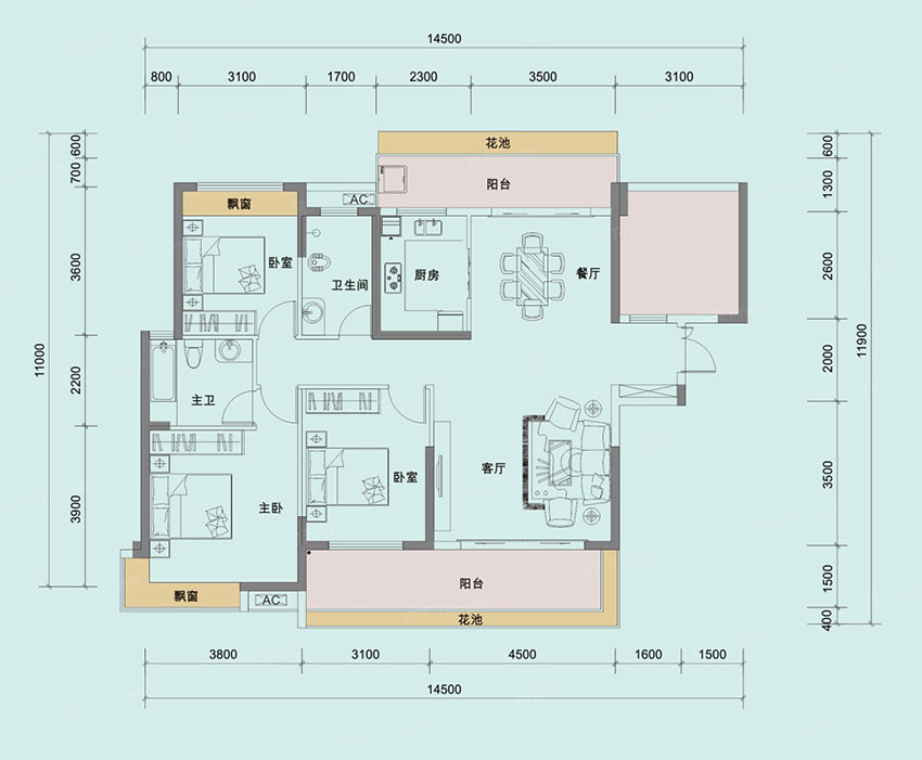
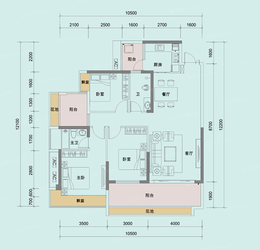
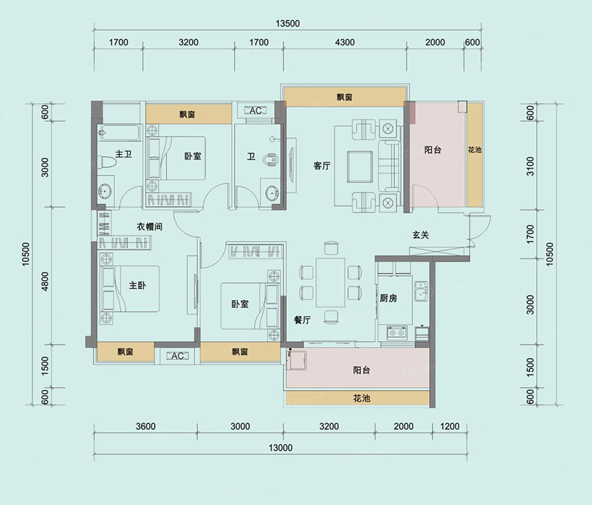
主力户型
查看全部区域配套
楼盘介绍
衡阳光辉一品位于衡州大道与光辉街交汇处(衡州小学斜对面),项目总占地面积约15744.9㎡,实际的总建筑面积约5.85万㎡,绿化率35%,容积率3.0,小区规划住宅总户数320户,车位385个,车位配比达1:1.2,自带约5000㎡商业综合体。








